ФД-45-1-200

Базовый комплект:
силовой каркас - деревянные клееные балки, ель, визуального качества, с запиловкой на станке Хундегер
- стойки
- нижние обвязки
- прогоны
- балки перекрытия
- стропила
- крепежные элементы.

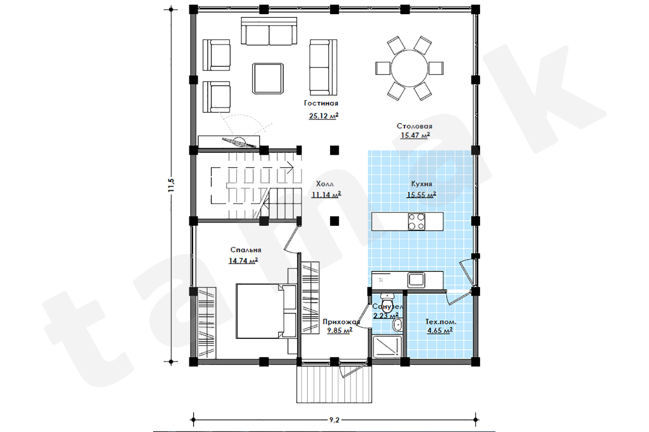
Площадь: 
201